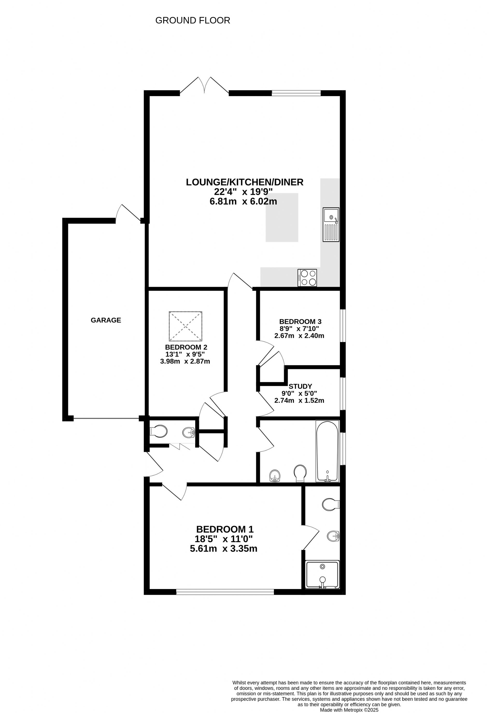
We are pleased to offer this recently renovated and extended, detached three bedroom bungalow. The property, which is being offered with NO ONWARD CHAIN, is just a short walk to Walton town centre, with all its amenities, including shops, schools, seafront, bus and rail services.
ENTRANCE HALL
Double glazed front door. Cloaks cupboard. Vinyl flooring. Access to loft. Radiator.
CLOAKROOM
Low level W.C. Vanity wash hand basin. Fully tiled walls. Vinyl flooring. Radiator. Double glazed window to side.
LOUNGE/KITCHEN/DINER
22’4” x 19’9” Inset single bowl, single drainer stainless steel sink unit with mixer tap. Marble effect work surfaces with cupboards and drawers under. Wall units. Inset ceramic hob with stainless steel extractor over. Built-in oven. Integrated fridge, freezer, dishwasher and washing machine. Large central island unit. Inset spot lighting. Vinyl flooring. Two radiators. Double glazed window to rear. Double glazed patio doors to rear leading to large decking area.
STUDY
9’ x 5’ Radiator. Vinyl flooring. Double glazed window to side.
BEDROOM 1
18’5” x 11’ Inset spot lighting. Radiator. Double glazed window to front.
EN-SUITE SHOWER ROOM
Large shower with glazed doors. Low level W.C. Vanity wash hand basin. Vinyl flooring. Heated towel rail. Extractor.
BEDROOM 2
13’1” x 9’5” Built-in cupboard. Vinyl flooring. Radiator. Skylight window.
BEDROOM 3
8’9” x 7’10” Vinyl flooring. Radiator. Double glazed window to side.
BATHROOM / W.C.
Panelled bath with mixer tap. Low level W.C. Vanity wash hand basin. Vinyl flooring, Heated towel rail. Double glazed window to side.
OUTSIDE FRONT GARDEN
Block paved with off road parking for several vehicles leading to Garage.
GARAGE
Up and over door.
REAR GARDEN
Large raised decking area leading lawn with flower and shrub borders.
SERVICES
We understand from the Vendor that all main services are connected.